77Designz

Kettenführungen
Kettenführungen
Crash Plates
Crash Plates
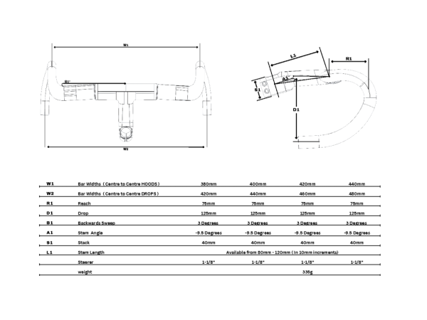
Cockpit
Cockpit
Mixed Products
Mixed Products